由于采用了新的叠瓦记录技术,现代 SMR 驱动器非常灵敏。 写入密度变得更高,而且驱动器固件中的内部进程几乎永远不会停止。 即使驱动器处于空闲状态,也会重写频段以优化数据访问。 这对于数据读取速度和增加写入驱动器的数据量非常有用,但不幸的是,有时这可能是内部进程失败的原因,并且驱动器停止提供以前写入的数据。 Windows 看到未分配用户区域,并自动启动格式化过程。 是的,驱动器被检测到并在那之后工作,但其上的所有数据都消失了。 问题在于,在格式化时,二级翻译器也会发生变化。 在这种情况下可以做些什么?Let 在这篇文章中看看它。

例如,我们有一个 Palmer 家庭驱动器,它状况良好,启动非常顺利,没有任何问题。ROM已根据本手册解锁。
在扇区编辑中,我们可以看到一些数据可用。我们现阶段不能说数据是新的还是旧的。

首先,始终建议进行固件备份。

在此阶段,我们建议取消选中 SA 轨迹,使用复合读数保存模块,并使用区域读数手动选择模块 190 以更快地进行初始备份。

让我们去PC-3000数据提取器检查驱动器中的数据。在文件夹树中,我们只看到标准文件夹,这些文件夹出现在Windows中的第一个HDD格式之后。

MFT 映射对于整个驱动器来说也非常小。

请注意,任何 MFT 扫描都不会找到任何数据,因为所有其他扇区都归零,但物理数据可能仍在驱动器中。
让我们回到 WDC Marvell 实用程序。首先,让我们使用实用程序中的新功能保存整个 T2 模块:T2 模块保存。

我们需要将 T2 保存为一个整体模块,因为只有整个模块才有关于所有数据的正确信息:

如果驱动器不是很好,则节省可能需要一些时间。
接下来,我们按下顶部工具栏上的另一个新按钮 Prepare to get UA PBA access,因为在本例中我们将使用物理块寻址。

并查看有关驱动器中区域的报告:
准备获取 UA PBA 访问
权限 区域类型…………………………. : 类型 2
区域…………………………….. : 2 080
区域读取…………………………. : 正常
PBA 扇区计数………………….. : 确定
保存到文件………………………. : 确定
接下来,我们将再次使用Data Extractor并创建另一个任务,但是在此阶段,选择PC-3000实用程序作为源非常重要:

在最后一步,我们选择使用 relo 读取 CHS:

在驱动器 ID 中,我们将只看到型号和容量,如果我们使用实用程序作为源,这是正常的。

现在,如果我们尝试打开文件夹树,我们可以看到下一条消息:

重要的是不要执行任何分析,因为它可能会影响我们进一步的数据恢复结果。只需关闭此选项卡,按右上角的红叉即可。
接下来,我们单击根目录上的鼠标右键,然后选择使用实用程序 -> 恢复二级转换器

,然后选择之前在 T2 模块保存过程中保存的 T2 文件。文件名是默认的,在我们的例子中是190_Copy0.rpm。还要选择忽略实际翻译器,因为在我们的例子中,实际的 T2 在格式之后不正确。例如,我们可以禁用此复选框,以防我们需要获取已删除的文件。

按 Ok 并等待一段时间。
该过程结束时,我们将在文件夹树中看到一些虚拟驱动器。如果我们尝试扩展它,我们仍然不会看到好的数据:

接下来,右键单击新创建的虚拟驱动器,然后选择编辑:

在下一步中,转到“版本”选项卡:

这些条目是我们需要恢复的分区的不同元数据版本(在 T2 模块中)。我们不知道其中哪一个是正确的。也许最新的就是我们需要的。
单击所选版本上的鼠标右键,然后选择使用:

然后刷新我们的虚拟驱动器:

还建议为新分区启用 Headers 控件,以查看结构是否良好:

正如我们所看到的,选择的版本并不好,因为我们看不到好的文件或任何结构:

让我们尝试使用另一个版本:

结果仍然不是很好。

为了改善结果,让我们选择元数据的选择版本:

过程后结果要好得多,我们甚至可以看到好的文件夹和文件:

现在我们可以退出这个模式了:

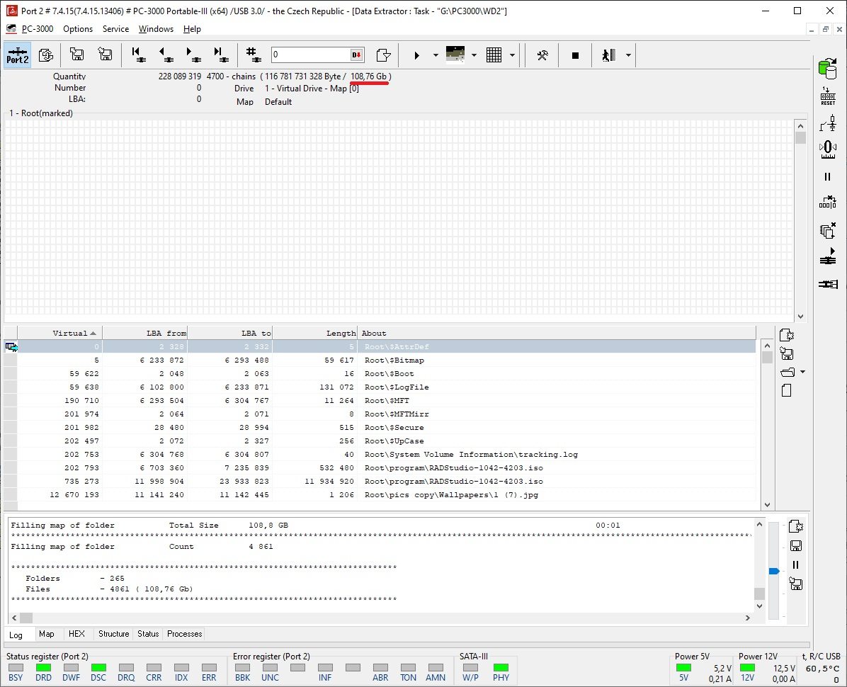
并在普通的Data Extractor文件夹树中检查我们的数据。文件夹和文件看起来不错,可以打开:

如果我们构建文件夹和文件的地图,它将非常大,大约 108 GB:

现在可以恢复数据。
请注意,通过 PBA 的成像速度不会很快,对于健康的驾驶,大约 10-12 Mb/s。
有关该过程的视频在这里:
主题测试文章,只做测试使用。发布者:admin,转转请注明出处:https://www.ycssd.com/index.php/2025/10/22/%e8%a5%bf%e9%83%a8%e6%95%b0%e6%8d%aesmr%e5%8f%a0%e7%93%a6%e7%9b%98%e6%a0%bc%e5%bc%8f%e5%8c%96%e8%a7%a3%e5%86%b3%e6%96%b9%e6%a1%88/